About Queens Court Reading
Queens Court Reading is a student accommodation option for students with facilities such as Queens Court Reading, student accommodation in Reading, modern student housing in Reading UK near places like Queens Court Reading and student accommodation in Reading with transport access including Queens Court Reading.
About Queens Court Reading
Overview and key student accommodation details.
Queens Court Reading, located at 15 Queens Walk, Reading RG1 7QF, UK, stands as a premium choice for students seeking high-quality student accommodation in Reading. Designed to meet the expectations of modern student living, this property offers a perfect balance of comfort, convenience, and connectivity, making it one of the most desirable residences for both domestic and international students in the United Kingdom.
Strategically positioned in the heart of Reading, Queens Court provides seamless access to leading academic institutions such as the University of Reading, University of West London (Reading Campus), and Reading College. This prime location ensures that students benefit from short commute times, allowing them to focus on their academic journey while enjoying a vibrant city lifestyle.
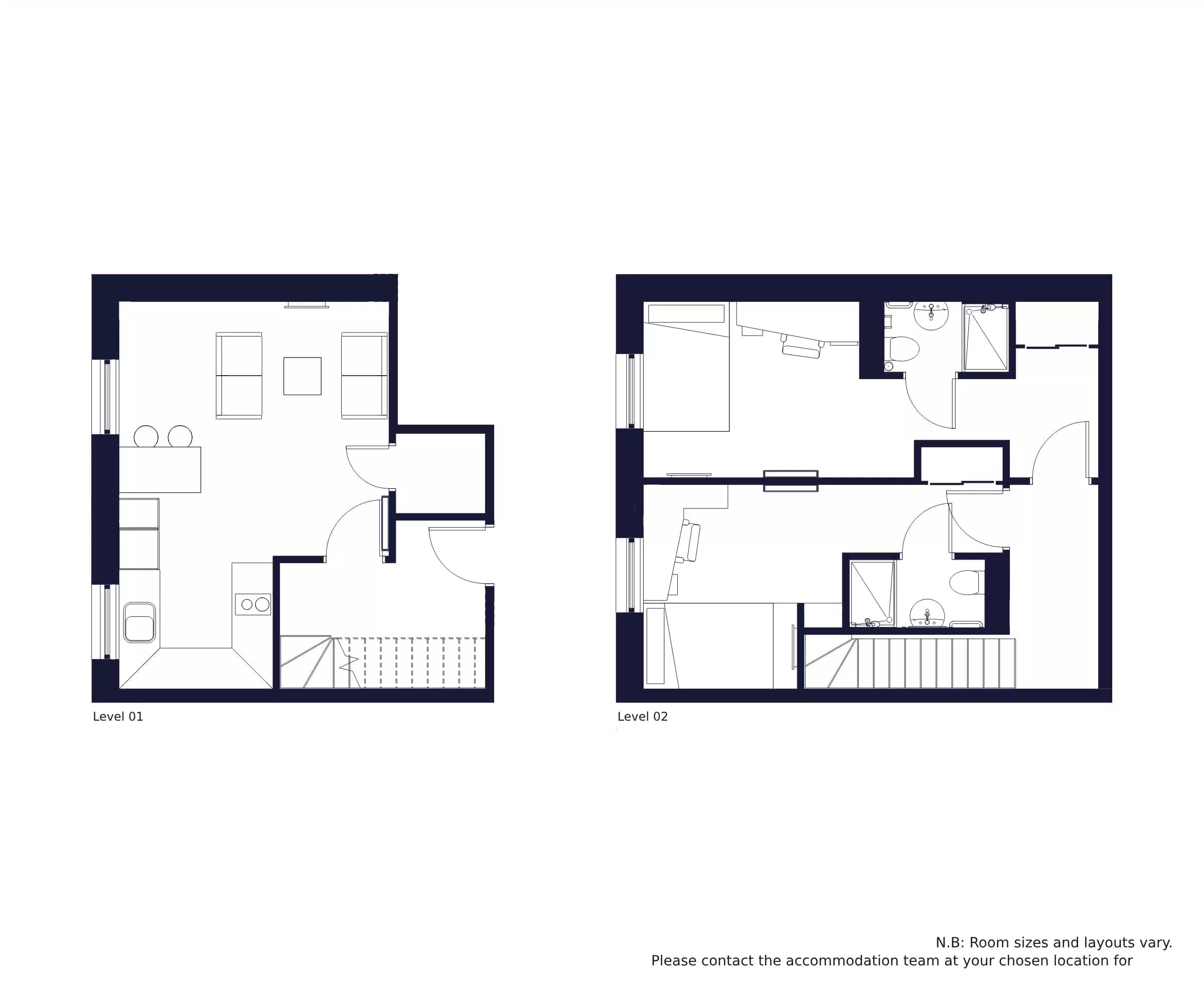
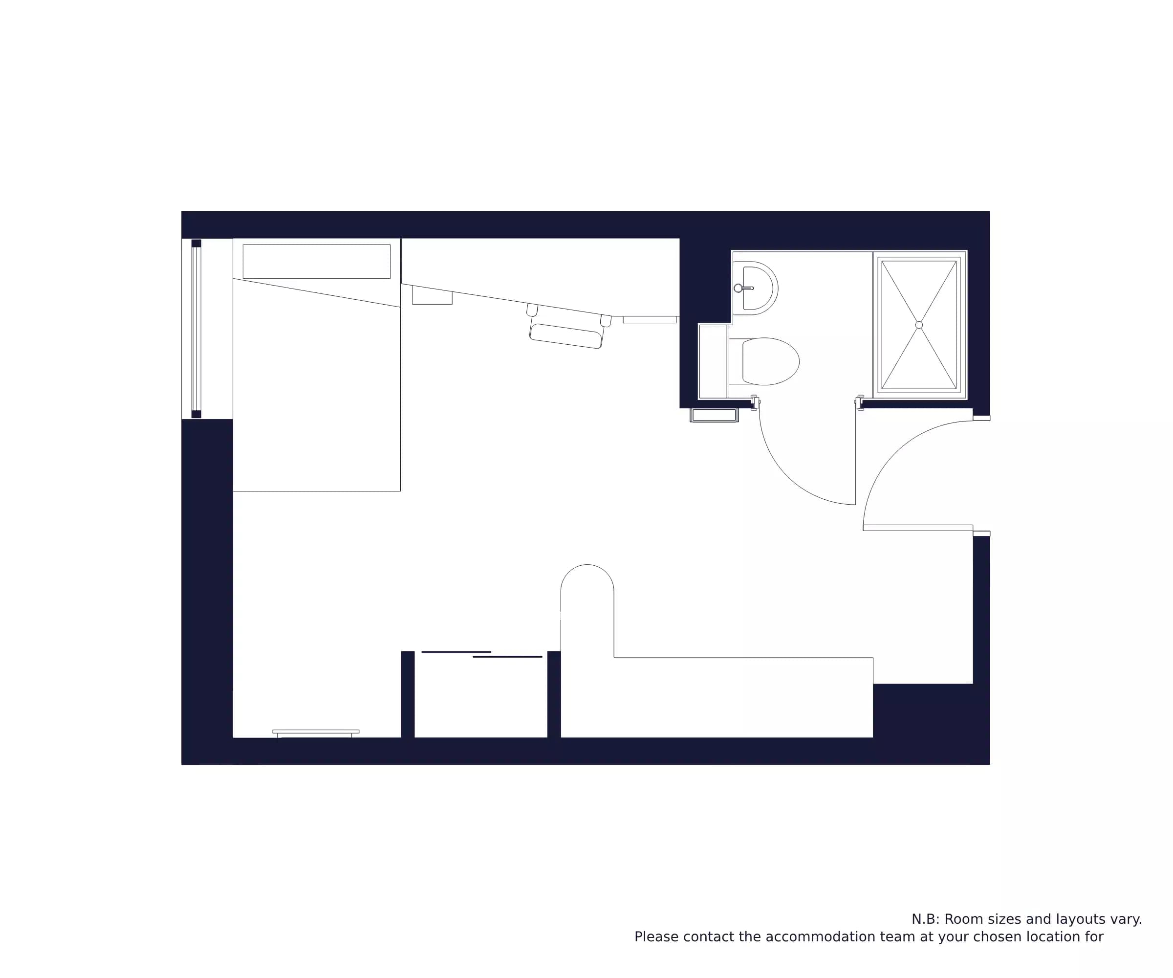
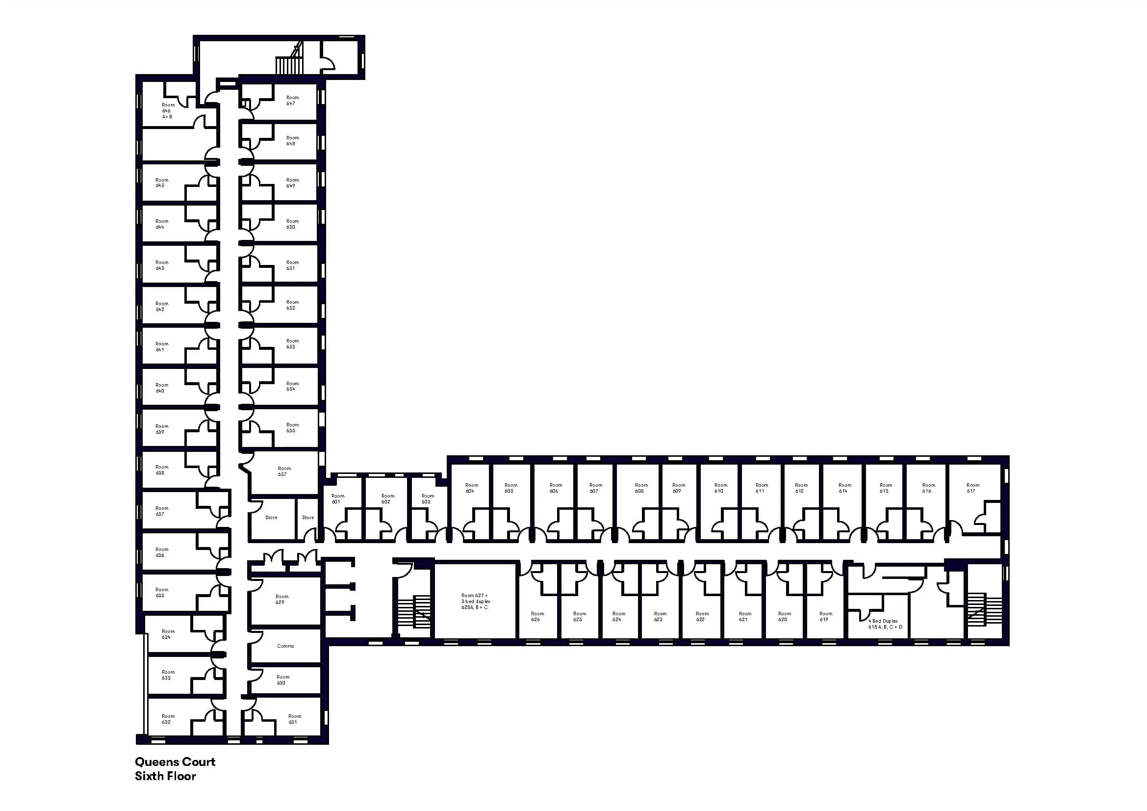
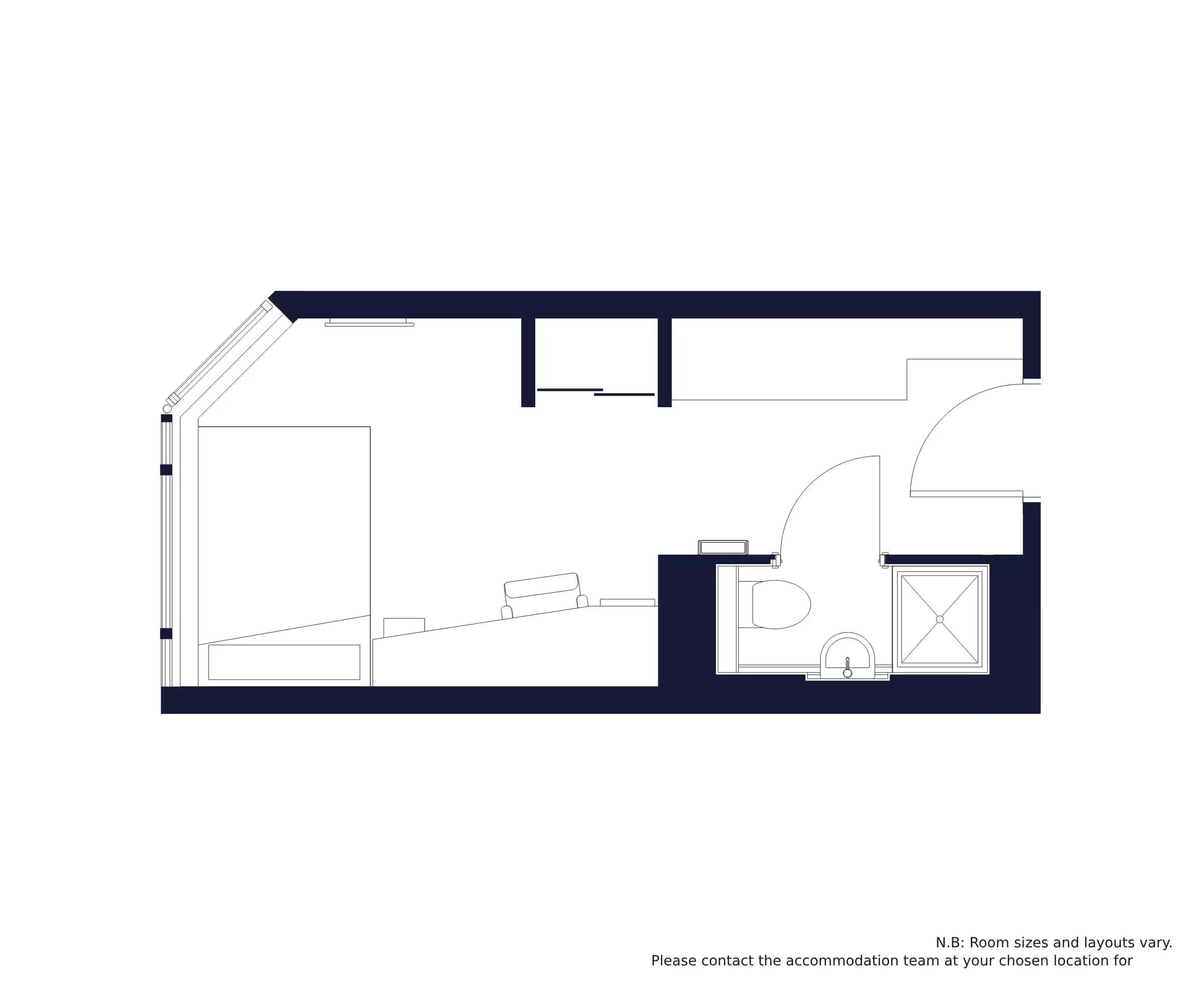
As a leading Reading student accommodation, Queens Court offers a diverse selection of living options, including ensuites, private apartments, and fully furnished studios. Each room is thoughtfully designed to provide a comfortable and productive environment, making it ideal for students searching for modern student housing in Reading, private student studios near universities, or fully furnished student accommodation in the UK.
The interiors at Queens Court are tailored to enhance both academic and personal well-being. Spacious layouts, contemporary furnishings, and dedicated study areas ensure that students have everything they need to succeed. Whether you prefer independent living in a studio or a more social experience in shared apartments, this accommodation caters to a wide range of preferences and budgets.
Reading itself is one of the most dynamic and student-friendly cities in the UK, offering a unique combination of historical charm and modern infrastructure. Known for its strong academic reputation and proximity to London, Reading attracts students from across the globe. Living at Queens Court places you at the centre of this thriving ecosystem, making it an excellent choice for those searching for student accommodation near London with affordable living.
The city’s rich heritage is reflected in landmarks such as Reading Abbey, while cultural institutions like the Museum of English Rural Life provide educational and recreational opportunities beyond the classroom. Students can also enjoy the scenic beauty of Forbury Gardens, offering a peaceful retreat from academic pressures.
Queens Court Reading is not just about location; it is about lifestyle. The surrounding area is filled with cafes, restaurants, shopping centres, and entertainment venues, ensuring that students have everything they need within easy reach. This makes it an ideal option for those searching for student accommodation near amenities or housing in central Reading locations.
The vibrant social scene in Reading further enhances the student experience. From lively pubs and bars to live music venues and cultural festivals, there is always something happening in the city. Students can easily balance their academic commitments with social activities, creating a well-rounded university experience.
Connectivity is another major advantage of Queens Court Reading. The property benefits from excellent transport links, including nearby bus routes and Reading Railway Station, which offers direct connections to London and other major cities. This makes it a perfect choice for students looking for student accommodation with strong transport links or housing near train stations in Reading.
Safety and security are key priorities at Queens Court. The property is designed to provide a secure and comfortable environment, giving students peace of mind throughout their stay. This makes it particularly appealing for international students and parents seeking safe student accommodation in Reading UK.
Another standout feature of Queens Court is its ability to support a balanced lifestyle. The accommodation encourages both independent living and community interaction, allowing students to build meaningful connections while maintaining their personal space. This combination is essential for creating a fulfilling student experience.
Booking through AdmiStay ensures that students gain access to verified properties, transparent pricing, and expert guidance throughout the booking process. AdmiStay specialises in connecting students with the best student accommodation in the UK, making it easier to find a home that matches your academic, lifestyle, and budget requirements.
For students actively searching for premium student accommodation in Reading, affordable student housing near universities, or fully furnished student rooms in the UK, Queens Court stands out as a top-tier option. Its combination of location, amenities, and modern design makes it a preferred choice among students.
Ultimately, Queens Court Reading offers more than just a place to stay—it provides a complete student living experience. From its strategic location and excellent connectivity to its modern facilities and vibrant surroundings, every aspect of this accommodation is designed to enhance student life.
Choosing Queens Court Reading means choosing convenience, comfort, and a future-focused student lifestyle—making it one of the smartest choices for student accommodation in Reading with AdmiStay.
Quick Answers About Queens Court Reading
Clear answer-focused content for users and search visibility.
What is Queens Court Reading?
Queens Court Reading is listed as student accommodation.
What facilities are available at Queens Court Reading?
Queens Court Reading offers facilities such as Queens Court Reading, student accommodation in Reading, modern student housing in Reading UK, room types.
How is the commute from Queens Court Reading?
Queens Court Reading has transport access including Queens Court Reading.
What is near Queens Court Reading?
Queens Court Reading is near Queens Court Reading and student accommodation in Reading.


























































