Available on selected room types only.
Homes Of Prairie Springs, Richardson
West Renner Road, Richardson, United States
Starting from
Subject to availability
Property Overview
About the Property - Homes Of Prairie Springs, Richardson
Overview
Located at 280 W Renner Rd Richardson, TX 75080, USA, within the bustling heart of Richardson, Texas, the Homes Of Prairie Springs, Dallas offers an ideal residence for students. With a selection of room configurations, including ensuites, non-ensuites and apartments, Homes at Prairie Springs address multiple living preferences and needs. This prime student housing in Dallas is conveniently situated for those attending the University of Texas at Dallas and Richland College, making it a perfect haven for those coveted study-work-life balances.
Dallas, Texas, a bustling metropolis in the heart of the southern United States, offers a blend of modern urban life and rich cultural heritage. Home to more than 1.3 million residents, Dallas attracts a diverse student population, including a growing number of international students, who are drawn by its educational and professional opportunities. With a #596 QS score, the city’s job market is robust, with strong sectors in technology, healthcare, finance, and commerce. Approximately 70% of students find part-time or internship positions that enhance their academic experience. With a safety index comparable to other major U.S. cities, Dallas provides a secure environment for students.
Homes of Prairie Springs is an excellent choice for San Francisco student housing, offering a range of amenities designed for comfort and convenience. Located in a well-connected area, students benefit from proximity to study spaces, local cafés, and recreational centers, creating a balanced lifestyle. The strategic location of the home of Prairie Springs also provides easy access to public transportation, making commutes throughout Dallas smooth and efficient. Dallas is known for its affordable cost of living compared to other large cities, allowing students to manage their expenses more effectively. Homes of Prairie Springs enhances this experience by providing a welcoming and community-focused environment where students can thrive academically and personally. If you are looking for more options, neighborhoods like Far North Dallas, Lakewood, and Highland Park offer great housing options with easy access to universities and amenities in Dallas.
Homes Of Prairie Springs, Richardson Offers & Student Booking Benefits
Explore student accommodation offers for Homes Of Prairie Springs, Richardson in Richardson, United States, including cashback up to $300, referral rewards, rebooking loyalty benefits, flexible booking support, and verified rooms near nearby universities.
Save up to $300
Cashback up to $300 on selected rooms at Homes Of Prairie Springs, Richardson
Referral cashback is processed after successful booking verification.
Loyalty rewards apply to returning Admistay students.
Offers for student accommodation in Richardson may vary by room type, intake, tenancy duration, and provider terms. Book with Admistay to compare verified student housing in United States near nearby universities.
Property Amenities
22 features • 2 categories
Common Amenities
18 items
Safety and Security
4 items
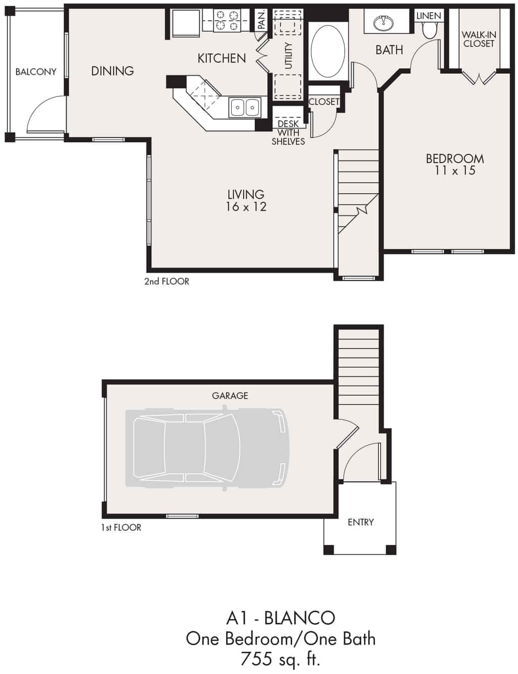
1 Bed 1 Bath |
from
Duration
12 weeks
Move In
4 May, 2026
Move Out
3 May, 2027
Price
£1,763 / month
Duration
11 weeks
Move In
4 May, 2026
Move Out
3 Apr, 2027
Price
£1,758 / month
2 Beds 1 Bath|
from
Duration
12 weeks
Move In
27 May, 2026
Move Out
26 May, 2027
Price
£1,988 / month
Duration
11 weeks
Move In
27 May, 2026
Move Out
26 Apr, 2027
Price
£2,138 / month
2 Beds 2 Baths
from
Duration
12 weeks
Move In
4 May, 2026
Move Out
3 May, 2027
Price
£2,673 / month
Duration
11 weeks
Move In
4 May, 2026
Move Out
3 Apr, 2027
Price
£2,323 / month
View photos3 Beds 2.5 Baths
from
Duration
12 weeks
Move In
29 May, 2026
Move Out
28 May, 2027
Price
£2,703 / month
Duration
11 weeks
Move In
29 May, 2026
Move Out
28 Apr, 2027
Price
£2,703 / month
Cancellation Policies
1 polic • Updated as provided by property
Early termination by students
Termination of the tenancy contract before the end date
Early termination by students
Once a student signs the agreement, it is not possible to break the agreement. However, the student can sub lease the unit to someone who is acceptable to the property.
Payment Policies
4 policies • Updated as provided by property
Security Deposit
Deposit RequiredDeposit property holds during the tenure
Security Deposit
Deposit RequiredApplication Fees :- 50- 100$ per person
Admin Fee :- 100-400$ per apartment
Security Deposit- 0- 2 Months rent
Guarantor Requirement
Guarantor NeededGuarantor requirements and policy.
Guarantor Requirement
Guarantor NeededThe property requires you to provide a valid US based guarantor.
Fully refundable holding fee
This holding fee of US$99 prioritises & fast-tracks your application with our partners.
The US$99 holding fee is fully refundable within 6 days of payment…
Fully refundable holding fee
- This holding fee of US$99 prioritises & fast-tracks your application with our partners.
- The US$99 holding fee is fully refundable within 6 days of payment. Full refund is applicable whether your booking is finalized with Admistay or even if we're unable to find a suitable match for you
Frequently Asked Questions
Everything students usually ask before booking.
When should I book?
You should book well in advance to avoid disappointment. We do accept late bookings, however, this is based on availability which may be limited. Most accommodations have great offers which can be availed by early booking, we suggest booking your ideal accommodation as soon as possible!
Can I make group bookings?
Yes depending on the property type, we accept group bookings, Please contact us to discuss availability.
Does Admistay charge any service fees?
Admistay will help you book the property as per your requirements. No- we do not charge you for our services, unless specified others.
How do I cancel a booking?
You can cancel your booking before the contract begins as per the cancellation policies mentioned on our page. Do read through the properties cancellation policies, get in touch with us to know more.
Do they provide free Wifi?
They have complimentary Wifi in common areas only.
Property Summary
Homes Of Prairie Springs, Richardson
West Renner Road, Richardson, United States
This is a fixed location preview. Interactive map navigation is disabled.
Essential Student Services for Homes Of Prairie Springs, Richardson in Richardson
International Bank Account in Richardson
Set up your international student bank account before moving to Richardson, United States, with document guidance for students staying at Homes Of Prairie Springs, Richardson.
- 1.Bank account setup guidance for international students moving to Richardson
- 2.Pre-arrival document and KYC support for studying in United States
- 3.Debit card activation guidance after reaching your student accommodation
*Terms, availability, and service partners vary by destination.Airport Pickup & Transfers in Richardson
Plan airport pickup and local transfer support for your move to Richardson, making arrival easier after booking Homes Of Prairie Springs, Richardson.
- 1.Airport pickup options for students arriving in Richardson
- 2.Transfer support from selected airports to Homes Of Prairie Springs, Richardson
- 3.Flexible rebooking guidance for delayed student flights
*Terms, availability, and service partners vary by destination.Student Health Cover in Richardson
Get student health cover and insurance guidance for studying in United States, ideal for international students moving to Richardson.
- 1.Student health cover guidance for studying in United States
- 2.Insurance support for medical and travel emergencies
- 3.Coverage suggestions based on your university and student housing location
*Terms, availability, and service partners vary by destination.Room Essentials Kit in Richardson
Arrange room essentials for Homes Of Prairie Springs, Richardson, including bedding, adapters, utensils, and move-in basics for student accommodation in Richardson.
- 1.Room essentials support for Homes Of Prairie Springs, Richardson
- 2.Bedding, adapters, utensils, and student move-in basics
- 3.Delivery coordination around your move-in date where available
*Terms, availability, and service partners vary by destination.
Explore student accommodation essential services in Richardson: value added services by Admistay


































